90º
NINETYDEGREESARCHITECTS
Projects
Battersea
Wimbledon
Raynes Park
Lake District
Tunbridge Wells
Epsom
Wimbledon Extension
Concept Design
Naples
Pico
London
Practice
About
Approach
Service
Features
Contact Us
Projects
Battersea
Wimbledon
Raynes Park
Lake District
Tunbridge Wells
Epsom
Wimbledon Extension
Concept Design
Naples
Pico
London
Practice
About
Approach
Service
Features
Contact Us
+
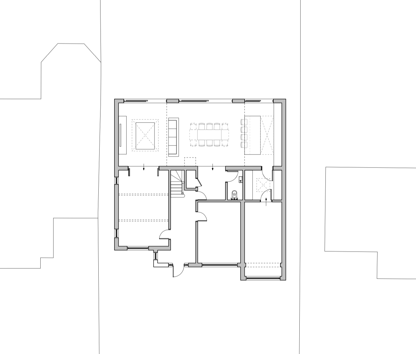
Epsom
Proposed | Two storey and large ground floor extension with internal reconfigurations
+
+
+
+
Existing Drawings
+
+
+